/Vehicles/Allies/UK/03-CruiserTanks/Sentinel/File/2-Design.htm | Up-dated:

 

Cruiser Tank Sentinel

Design

AC1

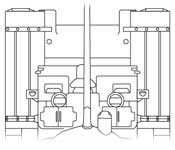
Le pilote était assis dans le coin avant-droit de la caisse et était séparé du mitrailleur de caisse (Vickers à refroidissement par eau) par la boîte de vitesse. Ce dernier ne disposait pas de siège et restait debout. La tourelle pivotait grâce à un moteur électrique. Le Sentinel embarquait 130 obus de 40 mm, principalement dans des râteliers situés dans la caisse autour du panier de tourelle. Le chargeur-radio-opérateur était assis du côté droit de la tourelle et la radio était installée dans la saillie arrière de la tourelle. Le canon de 2-pdr (40 mm) était monté au centre avec à sa droite une mitrailleuse Vickers. La canonnier était assis du côté gauche de la tourelle. Le commandant trônait à l'arrière de la tourelle. La motorisation de la tourelle était insuffisant et la rotation était malaisée lorsque le char était incliné.

The driver had sat in the corner front-right of the hull and was separated of the bow machine gunner (Vickers with water cooling) by the gear box. This last did not have seat and remained upright. The turret swivelled thanks to an electric motor. Sentinel embarked 130 rounds of 40 mm, mainly in racks located in the hull around the basket of turret. The loader-radio-operator had sat right side of the turret and the radio was installed in the back projection of the turret. The gun of 2-pdr (40 mm) was assembled in the center with on its right a Vickers machine-gun. The gunner had sat in left side of the turret. The commander had sat in the back of the turret. The motorization of the turret was insufficient and rotation was difficult when the tank was tilted.

 

Sentinel Front Deck & Rear Deck
src: Vincent Bourguignon

 

40mm Q.F. 2 Pounder Mk.IX/X L / 50 - Penetration Board (mm)
Ammo
Weight (kg)
Velocity
Angle (°)
100 m
500 m
1000 m
1500 m
2000 m
AP Shot Mk.I
(Armor Piercing)
1.08
808 m/s
30
66
50
35
25
18
APHE Shot Mk.I (Armor
Piercing High Explosive)
1.18
808 m/s
30
64
47
33
22
15
APCBC Shot Mk.I (Armor
Piercing Capped Ballistic
Cap)
1.22
792 m/s
30
61
55
48
42
36

 

src: Vincent Bourguignon

 

Les trois moteurs Cadillac était bien entendu placés à l'arrière dans le compartiment moteur. Le troisième était placé en retrait des deux autres, placés de chaque côtés du compartiment. Chaque moteur était connecté via un embrayage à une boîte de transfert "trois en un" située derrière la tourelle. L'arbre de transmission connectait l'embrayage principal à la boîte de vitesse et au différentiel contrôlé de type Cletrac semblable à celui utilisé sur les chars moyens américains M3 et M4. Cet arrangement permettait au Sentinel de rouler soit sur un seul moteur, soit sur tous. La puissance combiné des trois moteur était de 330 ch. Les radiateurs et les réservoirs était disposés autour et derrière le moteur arrière. Le Sentinel pouvait atteindre les 48 km/h sur route et les 34 km/h en tout-terrain. Le système de refroidissement d'origine était insuffisant, provoquant des surchauffes. Un système de refroidissement amélioré fut réalisé mais le pogramme du AC1 fut abandonné avant d'avoir put intégrer ce nouveau système. . Les galets de la suspension de type Hotchkiss n'avaient pas un cerclage de caoutchouc assez épais et avait une durée de vie faible. Heureusement ils était interchangeables avec les galets du M3 ou remplaçable par des galets tout en acier.

The three Cadillac engines was of course placed at the rear in the engine compartment. The third was placed in withdrawal of both others, placed each sides of the compartment. Each engine was connected via a clutch to a box of transfer "three in one" located behind the turret. The driveshaft connected the principal clutch to the gear box and the controlled differential of Cletrac type similar to that used on the American M3 and M4 medium tanks. This arrangement made it possible to Sentinel run roll either on only one engine, or on all. The power combined of the three engine was 330 hp. The radiators and the fuel tanks was laid out around and behind the back engine. Sentinel could reach the 48 km/h on road and the 34 km/h in cross-country. The system of cooling of origin was insufficient, causing overheatings. An improved system of cooling was carried out but the pogramme AC1 was abandoned before having could integrate this new system. The road-wheels of the suspension of the Hotchkiss type did not have a rather thick rubber hooping and had one weak lifespan. Fortunately they was interchangeable with the road-wheels of M3 or replaceable by road-wheels very out of steel.

 

Suspension Hotchkiss

 

Sentinel Running Gear
src: Vincent Bourguignon

 

Le blindage frontal du AC1 variait entre 45 et 65 mm selon l'angle. Les côtés et l'arrière avaient un blindage de 45 mm. Une trappe de secours était installé entre premier et le second bogie de chaque côté de la caisse. La tourelle avait un blindage frontal de 65 mm et de 50 mm pour les autres côtés. Le toit de la tourelle était épais de 35 mm.

The frontal shielding of the AC1 varied between 45 and 65 mm according to the angle. The sides and the back had a shielding of 45 mm. A hatch of escape was installed between first and the second bogie on each side of the hull. The turret had a frontal shielding of 65 mm and 50 mm for the other sides. The roof of the turret was thick 35 mm.

 

Sentinel Nose & Rear
src: Vincent Bourguignon

 

AC3

La tourelle du AC3 accueillait le canon de 25-pdr (87.6 mm) avec un nouveau système recul. Sur la caisse la mitrailleuse avait disparue et l'espace gagné fut utilisé pour stocker plus de munitions. Le AC3 utilisait la même circulaire de 1.37 m de diamètre que l'AC1. L'AC3 embarquait 60 obus perforants, 60 obus explosifs et 2500 balles de mitrailleuses. Les obus du 25-pdr se présentaient en deux parties séparées ce qui nuisait à la cadence de tir (8 tirs en 73 secondes).

The turret of the AC3 accomodated the gun of 25-pdr (87.6 mm) with a new system of recoil. On the hull the machine-gun had disappeared and the gained space was used to store more ammunition. The AC3 used the same turret ringof 1.37 m in diameter as the AC1. The AC3 embarked 60 piercing rounds, 60 high-explosive rounds and 2500 rounds of machine-guns. The rounds of the 25-pdr were presented in two separate parts what harmed to the rate of shooting (8 shootings in 73 seconds).

 

87.6 mm (25-pdr) Field Gun/Howitzer Penetration Table
Ammo
Weight (kg)
Velocity
Angle (°)
100 m
500 m
1000 m
1500 m
2000 m
AP Shot Mk.I
( Armor Piercing )

9.07
610 m/s
30
90
66
45
30
20

 

Le nez de l'AC3 était moins complexe que celui de l'AC1 et était épais de 51 mm. Le groupe-moteur Perrier-Cadillac fut modifié dans sa disposition pour former une seule unité de 24 cylindres, et la boîte de transfert "trois en un" fut supprimée. La puissance fut poussé à 397 ch.

The nose of the AC3 was less complex than that of the AC1 and was thick 51 mm. The Perrier-Cadillac engine-group was modified in its provision to form only one unit of 24 cylinders, and the box of transfer "three in one" was removed. The power was increased to 397 hp.

 

AC4

Le AC4 disposait d'une circulaire de tourelle plus large (1.78 m de diamètre) et de plus d'espace pour le canon et l'équipage. L'armement prévu était un canon de 17-pdr et une mitrailleuse Vickers avec une élévation de 20° et une dépression de 10°. Il embarquait 50-60 obus de 17-pdr et 2500-4000 munitions pour sa mitrailleuse. Le blindage était similaire à celui de l'AC3. Deux parties avant de tourelle furent développées pour accueillir soit le canon de 17-pdr soit celui de 25-pdr.

The AC4 laid out of a broader turret ring (1.78 m diameter) and more space for the gun and the crew. The armament envisaged was a gun of 17-pdr. and a Vickers machine-gun with an elevation of 20° and a depression of 10°. It embarked 50-60 rounds of 17-pdr and 2500-4000 ammunition for its machine-gun. The shielding was similar with that of the AC3. Two front parts for the turret were developed to accomodate the gun of 17-pdr or that of 25-pdr.

 

76.2 mm (17-pdr) OQF Mk. II - Penetration Board (mm)
Ammo
Weight (kg)
Velocity
Angle (°)
100 m
500 m
1000 m
1500 m
2000 m
AP Shot Mk.III
(Armor Piercing)
7.68
884 m/s
30
161
138
115
95
79

APC Shot Mk.IV
(Armor Piercing Capped)

7.71
884 m/s
30
140
130
119
108
99
APDS Shot Mk.I
(Armor Piercing
Discarding Sabot)
3.71
1284 m/s
30
221
204
185
167
151

 

Le poids de l'AC4 (environ 32 tonnes) fut compensé par une plus grande surface de contact au sol. L'AC4 devait être capable d'atteindre les 56 km/h sur route en modifiant la boîte de vitesse. On gardait ainsi le même groupe-moteur mais une alternative consistant en 4 moteurs en ligne Gipsy-Major (refroidissement par air) d'avion fut envisagée. Le design de la caisse était similaire à celui de l'AC3 mais les trappes des pilotes furent déplacés sur les côtés de la caisse et la paroi pare-feu du moteur fut déplacée un peu vers l'arrière. Les prises d'air situés derrière la tourelle furent supprimés et les évents à air du compartiment de combat élargis pour compenser.

On pensa pour standardiser au maximum le matériel des unités blindés australiennes, utilisé le système de rotation de tourelle du M4 Sherman et la suspension HVSS du même char.

The weight of the AC4 (approximately 32 tons) was compensated by a greater surface of contact on the ground. The AC4 was to be able to reach the 56 km/h on road by modifying the gear box. The same engine-group thus was kept but an alternative consisting of 4 engines in line Gipsy-Major (air cooling) of plane was considered. The design of the hull was similar with that of the AC3 but the hatches of the drivers were moved on the sides of the hull and the fire wall of the engine was moved a little backwards. The air intakes located behind the turret were removed and the air vents of the compartment of combat widened to compensate.

One thought to standardize to the maximum the material of the Australian armoured units, used the system of rotation of turret of M4 Sherman and suspension HVSS of the same tank.

 

Previous PageNext Page

ANZAC Tanks

 

Sources:

  • Les Blindés de la Seconde Guerre Mondiale, Ed. Atlas
  • Encyclopédie des Blindés, Ed. Elsevier Séquoia
  • site WII Vehicles

Menu Medium Tanks Next Drawing Last Drawing Menu Light Tanks Menu Light Tanks Menu Light Tanks Menu Light Tanks Menu Medium Tanks Next Drawing Last Drawing