Home/Allies/Vehicles/France/02-MediumTanks/CharBataille-B1/File/2-Design.htm | Last Up-date:

 

Char de bataille B1 / B1-bis

Design

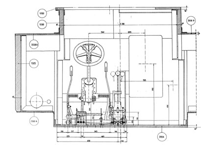
Le char B1-bis avait une caisse constituée de plaques d'acier boulonnées et de plaques blindées. Le train de roulement était protégé par des jupes blindées. La caisse était divisé en deux compartiments par une cloison pare-feu: le compartiment de combat à l'avant (avec les 4 hommes d'équipage) et le compartiment moteur-transmission à l'arrière. Le pilote (aussi canonnier du 75 mm) dirigeait le char grâce à volant de direction relié par des arbres à chaîne au système hydrostatique Naeder. L'affinage de la mise en direction du canon de 75 mm se faisait via un volant de pointage. Ce volant était situé derrière un masque boulonné sur la plage avant (à droite). L'élévation du canon causait le déplacement (au moyen d'un système de bielles) de la lunette de tir dans le poste de pilotage. Le système à air comprimé Luchard permettait l'évacuation instantanée de la fumée du tir. Le canon était flanquée à droite d'une mitrailleuse fixe, actionnée par le pilote ou le chef-de-char. Elle était pointée en site grâce à une boucle montée sur un support. Le chargeur vissait les fusées sur les projectiles de 75 mm et chargeait le canon, approvisionnait la mitrailleuse. Quand le commandant de bord avait épuisé les obus de 47 mm, le chargeur devait en plus de ses autres missions les recompléter.

The tank B1-bis had a hull made up of bolted steel plates and armoured plates. The running gear was protected by armoured skirts. The hull was divided into two compartments by a firewall: the frontal compartment of combat (with the 4 men of crew) and the rear engine-transmission compartment. The driver (also gunner of the 75 mm) directed the tank thanks to steering wheel connected by trees with chains to the hydrostatic system Naeder. The refining of the steering of the gun of 75 mm was done via a wheel of pointing. This wheel was located behind a mask bolted on the frontal beach (on the right). The elevation of the gun caused the displacement (by means of a system of rods) of the glasses of shooting in the cockpit. The compressed-air system Luchard allowed the instantaneous evacuation of the smoke of the shooting. The gun was flanked on the right by a fixed machine-gun, actuated by the driver or the chief-of-tank. It was pointed in site thanks to a loop assembled on a support. The loader screwed the rockets on the projectiles of 75 mm, loaded the gun, and supplied the machine-gun. When the commander had exhausted the rounds of 47 mm, the loader owed in more of his other missions to re-complete this last.

 

Char B1-bis front & rear hull
src: Vincent Bourguignon

 

Hull interior

 

Le commandant avait à sa disposition, une émetteur-récepteur, d'un interphone et d'un indicateur de cap gyroscopique. Le radio-télégraphiste était assis juste en dessous du commandant, seul dans la tourelle APX4. Cette tourelle était la même que celle montée sur le char de cavalerie Somua, accueillant le canon de 47 mm semi-automatique modèle 35, couplée à une mitrailleuse de 7.5 mm Chatellerault à pointage électrique. Le Char B1 était doté d'une tourelle APX1 comme le char D2. L'emport en munitons était de 75 obus (HE) pour de 75 mm et 50 obus (AP et HE) pour le 47 mm et 5100 balles pour les mitrailleuses.

The commander had at his disposal, a transmitter-receiver, an intercom and a gyroscopic way indicator. The radiotelegrapher had sat just below the commander, alone in turret APX4. This turret was the same one as that assembled on the tank of cavalry Somua, accomodating the semi-automatic gun of 47 mm model 35, coupled to a machine-gun of 7.5 mm Chatellerault with electric pointing. The B1 Tank was equipped with a turret APX1 like the D2 tank. Ammo transported was of 75 rounds (HE) for 75 mm and 50 rounds (AP and HE) for the 47 mm and 5100 rounds for the machine-guns.

 

75 mm main gun station

 

Char B1-bis

 

47 mm SA Mle 35

 

 

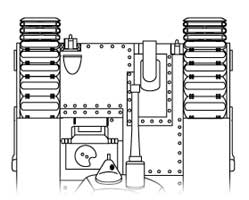
Sur le côté de droit de la caisse, était située la trappe d'accès (principale). Le pilote disposait d'un volet à la hauteur de sa tête et commandant avait à sa disposition un volet à l'arrière de la tourelle. Un trou d'homme était aménagé dans le plancher de la caisse. Il y avait également des trappes d'évacuation de douilles et une trappe de secours sur le toit de compartiment du moteur. Le compartiment-moteur était divisé en 3 parties. Le moteur et la transmission était placé au centre. Sur la droite, un couloir menait via une porte dans la cloison, aux indicateurs de niveau du carburant et à une partie des munitions. Toujours à droite, on trouvait 2 réservoirs étanches. Un autre réservoir était placé du côté gauche avec deux radiateurs et un ventilateur. Ce dernier aspirait l'air du dehors et le faisait passer sur le moteur, puis l'expulsait à travers la grille présente du le côté gauche du char.

On the right side of the hull, was located the (main) hatch of access. The driver had one shutter at the height of his head and commander had at his disposal a shutter at the back of the turret. An inspection pit was arranged in the floor of the hull. There were also hatches of evacuation for casings and an escape hatch on the roof of the engine-compartment. The engine-compartment was divided into 3 parts. The engine and the transmission were placed in the center. On the right, a corridor went via a door in the partition, to the fuel level indicators and a part of the ammunition. Always on the right, one found 2 tight fuel tanks. Another furl tank was placed on the left side with two radiators and a ventilator. This last aspired the air of the outside and made it pass on the engine, then expelled it through the grid present on the left side of the tank.

 

Ammo stockage

 

Char B1-bis APX4 turret
src: Vincent Bourguignon

 

Le moteur Renault 6 cylindres d'aviation était équipé d'un démarreur électrique et d'un dispositif à air comprimé. L'ensemble boîte de vitesses-transmission était relié directement au réducteur,et transmettait la puissance du moteur aux barbotins via des différentiels auxiliaires dirigés par le système hydrostatique Naeder (pour la direction). Ce système très sophistiquée permettait de très précis changements de direction, indispensables pour le pointage du canon de 75 mm. Les freins à tambour à servo-frein (bandages à sec) installés sur les différentiels auxiliaires intervenaient également dans les changements de direction.

The Renault 6 cylinders engine of aviation was equipped with an electric starter and a compressed-air device. The gearbox-transmission unit was connected directly to the reducer, and transmitted the output of the engine to the sprocket-wheels via auxiliary differentials directed by the hydrostatic system Naeder (for the steering). This system very sophisticated allowed very precise changes of direction, essential for the pointing of the gun of 75 mm. The drum-brakes with servo-brake (dry bindings) installed on the auxiliary differentials also intervened in the changes of direction.

 

Driver's station

 

Char B1-bis front deck
Char B1-bis rear deck
src: Vincent Bourguignon

 

La suspension était composée de chaque côté de 4 galets tendeurs et 3 chariots porteurs. Chaque chariot était composé de 4 galets couplés aux balanciers articulés en leur centre et reliés à de gros ressorts verticaux. Les poulies de tension à l'avant étaient dotées chacune d'un ressort, ce qui permettait de régler la tension des chenilles de l'intérieur. Ce train de roulement complexe nécessitait une lubrification assez importante qui était facilitée par un système de graissage composé de 4 groupes, ainsi qu'une maintenance constante.

Le blindage épais au maximum de 60 mm à l'avant et sur les côtés était très épais pour l'époque et à l'abris de quasi tous les canons allemands.

The suspension was made up on each side of 4 idler road-wheels and 3 bogies. Each bogie was composed of 4 road-wheels coupled with the beams articulated in their center and connected to large vertical springs. The frontal tracks idlers were equipped each one with a spring, which made it possible to regulate the tension of the tracks from the interior. This complex running gear required a rather important lubrication which was facilitated by a lubricating system made up of 4 groups, as well as a constant maintenance.

The shielding thick to the maximum of 60 mm in front and on the sides was very thick for the time and safe from quasi all German guns.

 

 

Previous PageNext PageLast Page

Medium Tanks

 

Sources:

  • Les Blindés de l'Origine à 1940 - Profils et Histoire, "Connaissance de l'Histoire" hors-série n°3, Editions Hachette
  • WWII Vehicles
  • Les Blindés de la Seconde Guerre Mondiale, Ed. Atlas
  • Les Chars français

Menu Medium Tanks Next Drawing Last Drawing Menu Light Tanks Menu Light Tanks Menu Light Tanks Menu Light Tanks Menu Medium Tanks Next Drawing Last Drawing