/Vehicles/Allies/UK/01-LightTanks/Vickers-6T/File/2-Design.htm | Up-dated:

 

Light Tank 6-ton Mark E

Design

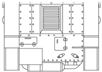
Le design du Vickers 6-ton était classique avec un compartiment de combat au milieu et un compartiment moteur à l'arrière. Le blindage de ce char était fait de plaques d'acier laminé rivetées. Il était épais pour la caisse de 13 mm à l'avant et sur les côtés, de 8 mm pour l'arrière, et pour la tourelle de 13 mm sur toutes les surfaces. Le toit avait une épaisseur de 5 mm. L'équipage était composé de trois hommes. Le pilote était assis dans le poste de conduite à l'avant du char (côté droit). Il disposait d'une trappe en deux volets et d'un viseur.

The design of Vickers 6-ton was traditional with a compartment of combat in the center and a engine compartment with the back. The shielding of this tank was made of riveted plates of laminated steel. It was thick for the hull of 13 mm in front and on the sides, of 8 mm for the back, and of 13 mm for the turret on all surfaces. The roof had a thickness of 5 mm. The crew was composed of three men. The driver had sat in the driver's cab in front of the tank (on the right side). He had a hatch with two shutters and a sight.

 

Vickers 6-ton Tank Mark E Type B
src: ?

 

Vickers 6-ton Nose & Rear
src: Vincent Bourguignon

 

Les deux tourelles "un-homme" du Mark A étaient identiques et étaient dotées chacune d'une trappe sur le toit. Les deux servants des mitrailleuses, étaient assis sur des ceintures. L'armement standard du Mark A était constitué de deux mitrailleuses Vickers .303 (7.7 mm) à refroidissement par eau. Les radiateurs à eau des mitrailleuses étaient protégés par des manchons cylindriques. Cependant sur les versions d'exportation d'autres mitrailleuses seront montées comme les 7.62 mm DT MG du T-26A russe. Environ 6000 coups de 7.7 mm étaient embarqués pour les mitrailleuses Vickers.

The two 1-man turrets of Mark A were identical and were equipped each one with a hatch on the roof. the two gunners of the machine-guns, had sat on belts. The standard armament of Mark A consisted of two machine-guns Vickers .303 (7.7 mm) with water cooling. The radiators with water of the machine-guns were protected by split couplings. However on the versions of export, other machine-guns will be mounted like 7.62 mm DT MG of the Russian T-26A. Approximately 6000 rounds of 7.7 mm were embarked for the Vickers machine-guns.

 

Vickers 6-ton Tank Rear Deck
src: ?

 

Vickers 6-ton Front Deck & Front Deck
src: Vincent Bourguignon

 

Le Mark B était doté d'une tourelle unique un peu décalée sur le côté gauche. Les derniers Mark B furent dotés d'une nouvelle caisse avec tourelle décalée vers la droite. Le commandant et le canonnier prenaient place tout deux dans la tourelle, dotée d'une trappe à deux volets sur le toit. Certains exemplaires furent dotés d'une niche arrière pour poste radio Marconi. Des fentes de visions étaient disposés sur les côtés. L'armement standard du Mark B était constitué d'un canon court de 47 mm Vickers QF (Quick Firing) et d'une mitrailleuse .303 Vickers (7.7 mm) coaxiale. La lunette télescopique était située à gauche du canon. Un total de 49-50 coups de 47 mm étaient embarqués pour le canon et entre 4000 et 6000 coups de 7.7 mm pour la mitrailleuse. Les obus de 47 mm étaient de type explosifs (HE).

The Mark B was equipped with a single turret shifted a little on the left side. Last Mark B were equipped with a new hull with turret shifted towards the right. The commander and the gunner took seat all two in the turret, equipped with a hatch with two shutters on the roof. Certain specimens were equipped with a back niche for station radio Marconi. Slits of visions were laid out on the sides. The standard armament of the Mark B consisted of a short gun of 47 mm Vickers QF (Quick Firing) and of a machine-gun .303 Vickers (7.7 mm) coaxial. The telescopic glasses were located on the left gun. A total of 49-50 rounds of 47 mm were embarked for the gun and between 4000 and 6000 rounds of 7.7 mm for the machine-gun. The rounds of 47 mm were of type explosives (HE).

 

Vickers 6-ton Tank Suspension
src: ?

 

Vickers 6-ton Running Gear
src: Vincent Bourguignon

 

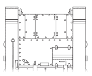
Le moteur était un Armstrong-Siddeley Puma (essence) de 4 cylindres (en ligne), à refroidissement par eau, développant 87-92 ch. Il était couplé à une boîte de vitesse 4 rapports vers l'avant et une marche arrière. La suspension était composée de chaque côté d'un barbotin avant, de deux bogies Vickers à ressorts à lames canteliver dotés chacun de 4 double-galets (acier avec caoutchouc), une poulie de tension arrière et 4 rouleaux porteurs. Chaque unité de suspension pivotait sur son propre axe. Les chenilles de 230 mm étaient composées chacune de 102-103 patins et étaient en contact avec le sol sur 2.70 m.

The engine was an Armstrong-siddeley Puma (gasoline) of 4 cylinders (on line), with water cooling, developing 87-92 hp. It was coupled with a gearbox with 4 speeds forwards and a reverse speed. The suspension was made up on each side of a front sprocket-wheel, two Vickers bogies with leaf springs canteliver equipped each one with 4 double road-wheels (steel with rubber), a back idler and 4 return rollers. Each unit of suspension swivelled on its own axis. The tracks of 230 mm were made up each one of 102-103 links and were in contact with the ground on 2.70 m.

 

Previous PageNext PageLast Page

Light  Tanks

 

Sources:

  • Les Blindés de la Seconde Guerre Mondiale, Ed. Atlas
  • WWII Vehicles

Menu Medium Tanks Next Drawing Last Drawing Menu Light Tanks Menu Light Tanks Menu Light Tanks Menu Light Tanks Menu Medium Tanks Next Drawing Last Drawing