/Vehicles/Allies/USA/05-SPG/M12-HMC/File/2-Design.htm | Up-dated:

 

M12 155 mm Gun Motor Carriage

Design: Part 1

Le M12 était divisé en trois compartiments: la cabine de pilotage à l' avant, le compartiment moteur au milieu et le compartiment de combat à l' arrière. Bien que le bas de caisse soit celui du Medium Tank M3 Lee, toute la superstructure fut retravaillée. Le poste de pilotage était une véritable cabine et les deux pilotes étaient complètement séparés du reste de l' équipage. L' accès à la cabine se faisait via deux trappes montées sur charnières sur le toit de la cabine ou via une porte située du côté du pilote sur le côté gauche. Pour leur vision les deux hommes de la cabine possédait chacun une fenêtre de vision sur la plaque frontale de la cabine. a disposition interne des éléments de transmission finale était identique à celle du M3. Le dispositif de commande finale était monté perpendiculairement aux deux pilotes et la transmission Synchromesh à 6 rapports (5-1) était installée entre eux. Le tout était protégés par un nez composé de trois pièces boulonnées entre elles.

M12 was divided into three compartment: the cockpit to front, the engine compartment in the middle and the compartment of combat to the back. Although the lower hull is that of Medium Tank M3 Lee, all the superstructure was worked over again. The cockpit was a true cabin and the two drivers were completely separated from the remainder of the crew. The access to the cabin was done via two trap doors assembled on hinges on the roof of the cabin or via a door located on the side of the driver on the left side. For their vision the two men of the cabin had each one a window of vision on the frontal plate of the cabin. internal provision of the elements of final command has was identical to that of M3. The final command device was assembled perpendicularly with the two drivers and the Synchromesh transmission with 6 speeds (5-1) was installed between them. The whole was protected by a nose made up of three parts bolted between them.

 

M12 cockpit view
src: Vincent Bourguignon

 

M12 cockpit view
src: Vincent Bourguignon

 

Pour pouvoir fournir un espace suffisant pour l' imposant canon de 155 mm, le compartiment moteur fut déplacé au milieu du char entre le compartiment de combat et la cabine de pilotage. Le plateau recouvrant le moteur étaient composée de deux plaques avec grilles de ventilation. Le moteur du M12 était celui du M3 c' est-à-dire, le Continental R975-C1 essence de 9 cylindres, développant 350 à 400 CV à 2400 tours/minute. Ce moteur permettait au M12 d' atteindre les 40 km/h sur route. Les 908 l de carburant embarqués donnait au M12 une autonomie de 230 km.

L' armement du M12 était constitué du seul obusier de 155 mm M1919 (ou M1917A1 et M1918M1) monté sur un affût M4 dans le compartiment de combat. Le 155 mm avait une portée maximale de près de 14 km. Le champ de tir latéral était limité à 14° de chaque côté. Pour le pointage en hauteur, l' obusier possédait une dépression de 5° et une élévation de 30°. Les modèles envoyés en Europe furent dotés d' un petit bouclier. Seulement 10 projectiles de 155 mm pouvaient être installés dans le compartiment de combat ainsi que 2 hommes d' équipage. Le reste de l'équipage (2 hommes) et un surplus de munitions étaient transportés dans un transport de munitions, le M30 qui est en fait une version désarmée du M12. Les deux hommes installés à l' arrière étaient assis sur des sièges montés à la gauche du canon au dessus de la chenille gauche.

To be able to provide a sufficient space for the imposing gun of 155 mm, the engine compartment was moved in the middle of the tank between the compartment of combat and the cockpit. The plate covering the engine were made up of two plates with grids of ventilation. The engine of M12 was that of M3, the Continental R975-C1 gasoline of 9 cylinders, developing 350 to 400 hp to 2400 rpm. This engine made it possible M12 to reach the 40 km/h on road. The 908 L of fuel load gave to M12 an autonomy of 230 km.

The armament of M12 was consisted of the only howitzer of 155 mm M1919 (or M1917A1 and M1918M1) assembled on a M4 mounting in the compartment of combat. The 155 mm had a maximum range of almost 14 km. The traverse was limited to 14° each side. For the pointing in height, the howitzer had a depression of 5° and an elevation of 30°. The models sent in Europe were equipped with a small shield. Only 10 projectiles of 155 mm could be installed in the compartment of combat like 2 men of crew. The remainder of the crew (2 men) and a surplus of ammunition was transported in a transport of ammunition, M30 which is in fact a disarmed version of M12. The two men installed to the back were sitted on seats assembled to the left of the gun to the top of the left track.

 

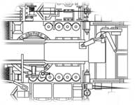
Engine compartment Combat compartment
src: Vincent Bourguignon

 

Previous PageNext PageLast Page

Self-Propelled Guns

 

Sources:


Menu Medium Tanks Next Drawing Last Drawing Menu Light Tanks Menu Light Tanks Menu Light Tanks Menu Light Tanks Menu Medium Tanks Next Drawing Last Drawing